Praxis
Dr.Happe & Kollegen
2014

zurück

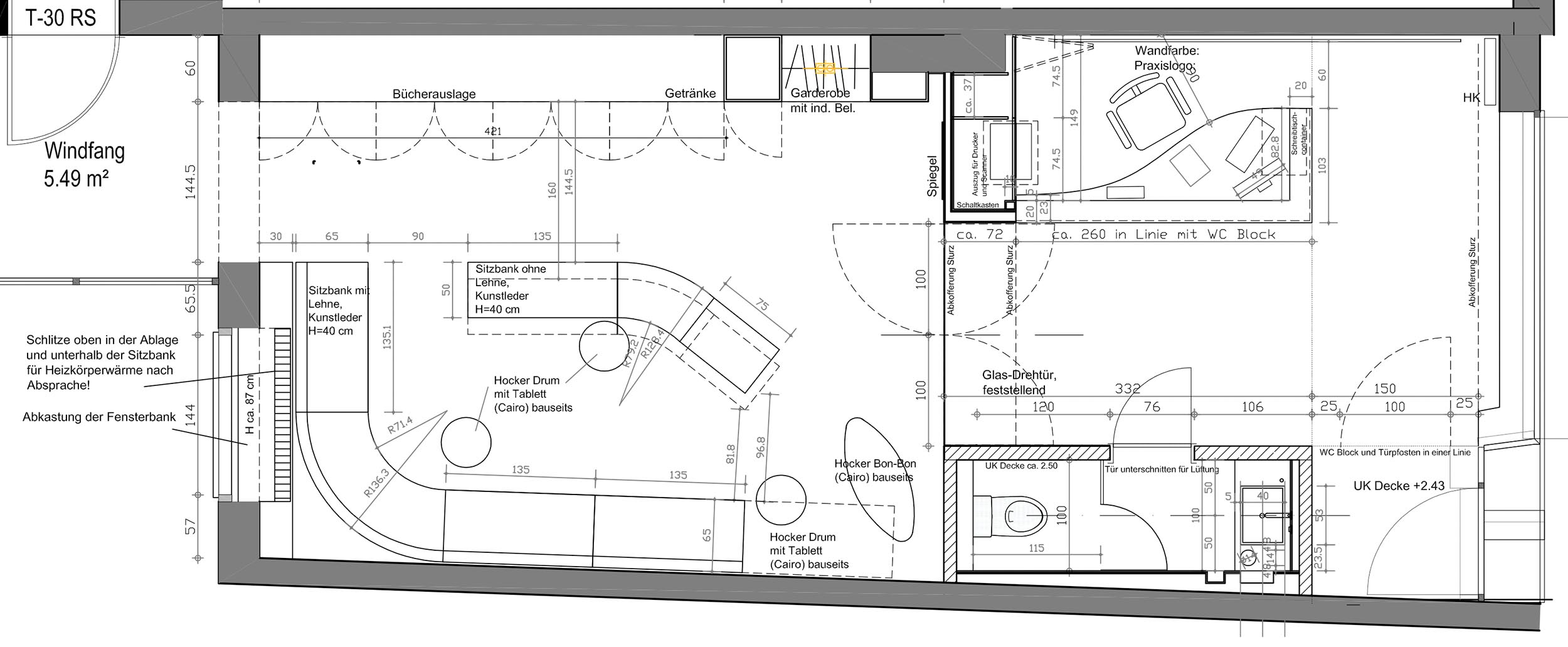
Entwurfsentwicklung und -planung der repräsentativen Eingangs-, Warte- und Beratungsräume für eine Zahnarztpraxis. Die Herausforderung lag neben einer optischen Führung inkl. Lichtkonzept durch einen schmalen Raum mit „Schaufenster”, hin zu einem offenen Wartebereich, der auch für Vorträge genutzt werden kann.